A multi-million pound redevelopment of Cowdenbeath’s Town House moved forward this week with a full planning application submitted to Fife Council.
With funding secured totalling more than £2million, local regeneration group BRAG Enterprises have moved forward on their plans to bring the building back into use for as a thriving community hub for events, meetings and flexible space for small businesses and social enterprises.
If planning permission is approved, the group say work will start in the new year, with completion expected by around October 2026. The hub will contain a public cafe, kitchen, exhibition space, meeting rooms, and spaces of different sizes for local businesses to rent, as well as retaining the historical Town Chamber, where locals will recall weddings and civic events over several decades.
Radio Cowdenbeath will also take up home in the building, with the construction of 2 purpose-built studios!
In a statement on social media, BRAG said “This light-touch refurbishment will preserve the building’s heritage while introducing modern functionality.”
The grade-C listed building has stood prominently on the town’s High Street for 120 years and served as the local jail, burgh court, a wedding venue and as the centre of local municipal power, from the Town Council to the more recent Fife Council area office. The building has been empty for several years and required investment in 2020 due to the poor condition of the roof.
In documents as part of the planning bid, the building had been previously described as ‘dumpy’ in one historical architectural guide, but is a well-kent and loved building by the people of Cowdenbeath.

Stuart Duffy, of local development group, My Cowdenbeath, told us: “This is fantastic news for the town and BRAG are to be commended for their ambition to bring this building back to life again. Several ideas have been proposed by different groups over the past few years, some which might have seen the building lost from community ownership, but we’ve now got the right development and the right group to move it forward, so we’re fully behind these plans which restore the Toon Hoose for public use and retain its heritage and character. I hope everyone can see the benefits for the town and support BRAG in their efforts to save this building. We can’t wait for the work to get started!”
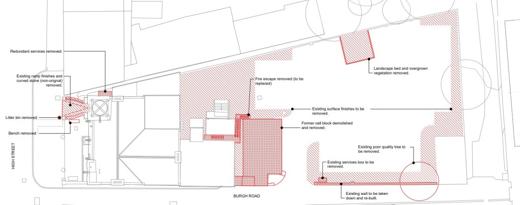
Some minor changes to the building’s exterior will be needed, which are detailed as part of the submission to planners. These include the upgrading of the entrance from the High Street, the removal of the old jail cells block and a new fire escape at the rear. The car park will be redeveloped, including the removal of the old boundary wall on Burgh Road, which will be rebuilt in a similar style, with barrier access for vehicles.
The town’s war memorial will remain in its place outside the main entrance.

You can read the full application and supporting documents here.









